GORE "Expansion One"

Pleinfeld | 2025

Die Ausgangssituation

W. L. Gore & Associates ist ein globales Unternehmen im Bereich der Materialwissenschaften, das sich zum Ziel setzt, Industrien und Leben zu verbessern. Seit seiner Gründung 1958 löst Gore komplexe technische Herausforderungen – vom Weltraum über die höchsten Gipfel der Welt bis hin zum Inneren des menschlichen Körpers.  

Standort Pleinfeld in Mittelfranken am Brombachsee

Die Aufgabe

Um die steigende Nachfrage von Kunden aus Luft- und Raumfahrt sowie der Halbleiterindustrie zu erfüllen, benötigt das Unternehmen mehr Produktionsfläche. 

Projektinformationen

Fertigstellung
10. 2025

NUF
4.646 m²

BGF
6.385  m²

Bauherr 
W.L. Gore & Associates

BRI
39.260 m³

Die Lösung

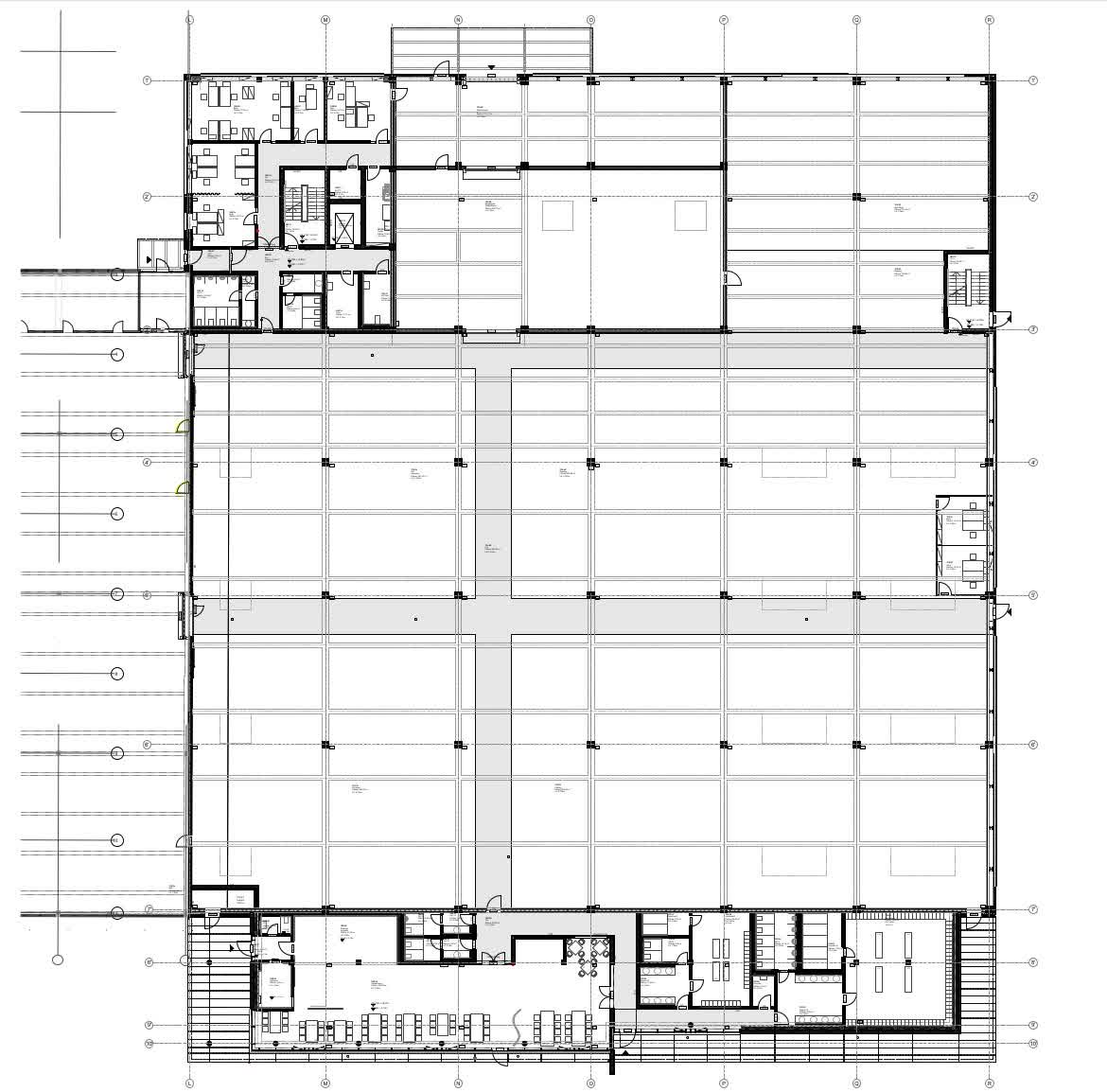
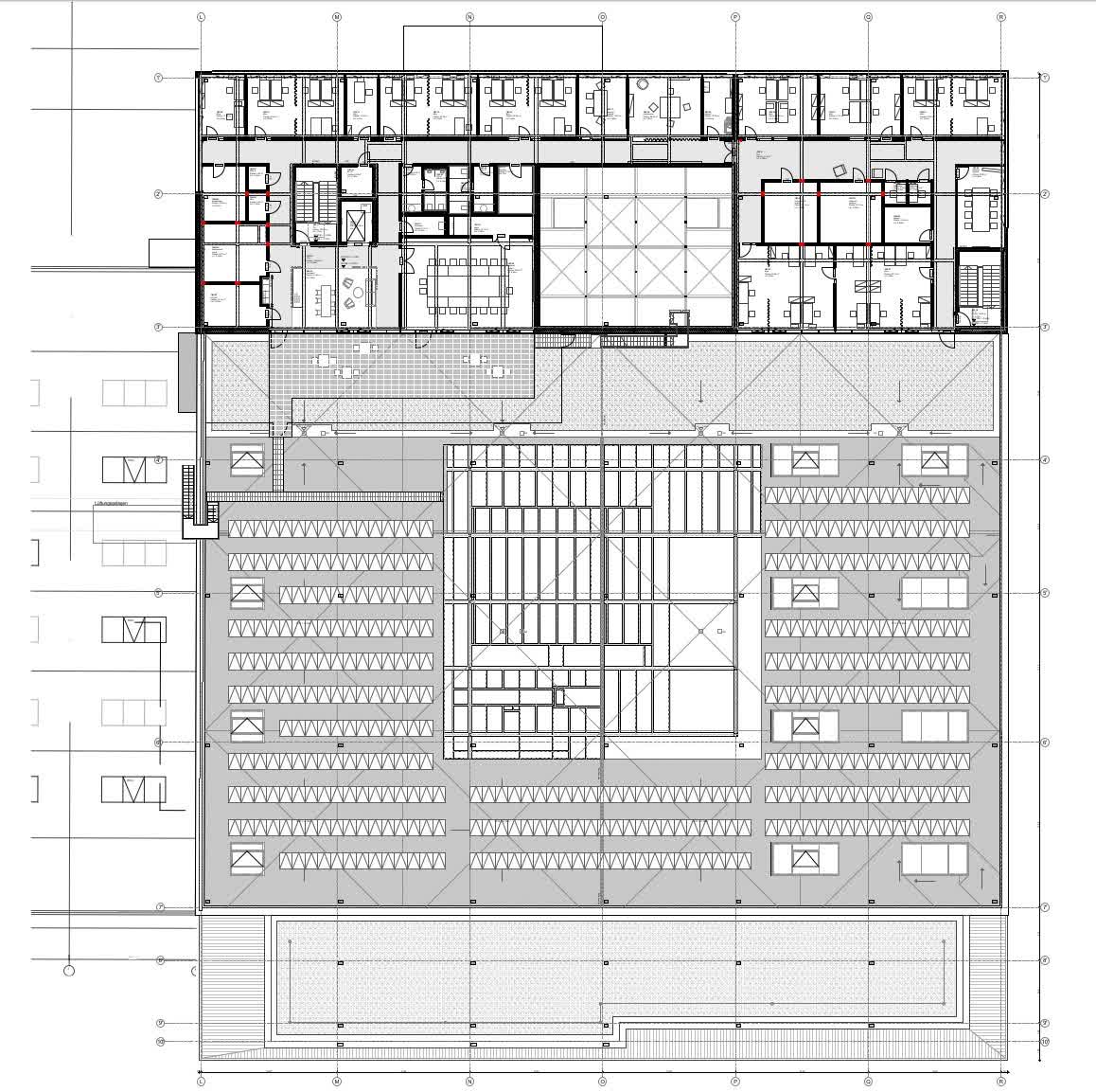
Am 10. Oktober 2023 wurde der Spatenstich für die Werkserweiterung „expansion one“ mit einer BGF von circa 6.385 Quadratmetern offiziell begangen. Die Funktionsgruppen bestehen aus einer Produktionshalle, Büros mit Meetingbereichen und einer Kantine im Süden. In Q4/ 2025 wird „Expansion one“ komplett fertiggestellt sein.

Auch an die Zukunft wurde gedacht: 
bw+p entwickelte zudem eine futuristische Masterplanung für den Standort Pleinfeld. 
see you soon - in the future!

 

Renderings von Maximilian Illing