Evangeliumskirche Hasenbergl

München | 2022

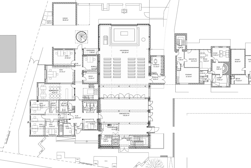
Die Ausgangssituation

Der Kirchenraum soll an die gesunkenen Gemeindeglieder- und Besucherzahlen angepasst werden. Der dabei entstandene Platz wird durch eine „Haus im Haus“-Lösung genutzt. Außerdem wird die 1962 eingeweihte Kirche grundlegend saniert.

Die Herausforderung

Da das Gebäude auf der Liste der Baudenkmäler des Regierungsbezirks Oberbayern steht, werden am äußeren Erscheinungsbild keine Änderungen vorgenommen. Die sanitären Einrichtungen werden runderneuert und barrierefreie Zugänge geschaffen. Zudem soll der durch die Verkleinerung des Kirchenraums neugeschaffene Platz für vielfältige Gemeindezwecken nutzbar gemacht werden.    

 

Projektinformationen

Fertigstellung
2022

BRI
9671 m³

Baukosten
5 Mio. €

Bauherr
Ev.-Luth. Kirchengemeindeamt München

 

Die Lösung

Durch den Einbau zweier Ebenen im Kirchenraum ist weiterhin genügend Platz für die Gottesdienstbesucher vorhanden und es werden Räume für die Gemeinde geschaffen, die sich für Feste, Empfänge oder Kurse eignen. Dafür muss die Orgelempore versetzt werden. Ein neu zu errichtender Aufzug sorgt für die nötige Barrierefreiheit.